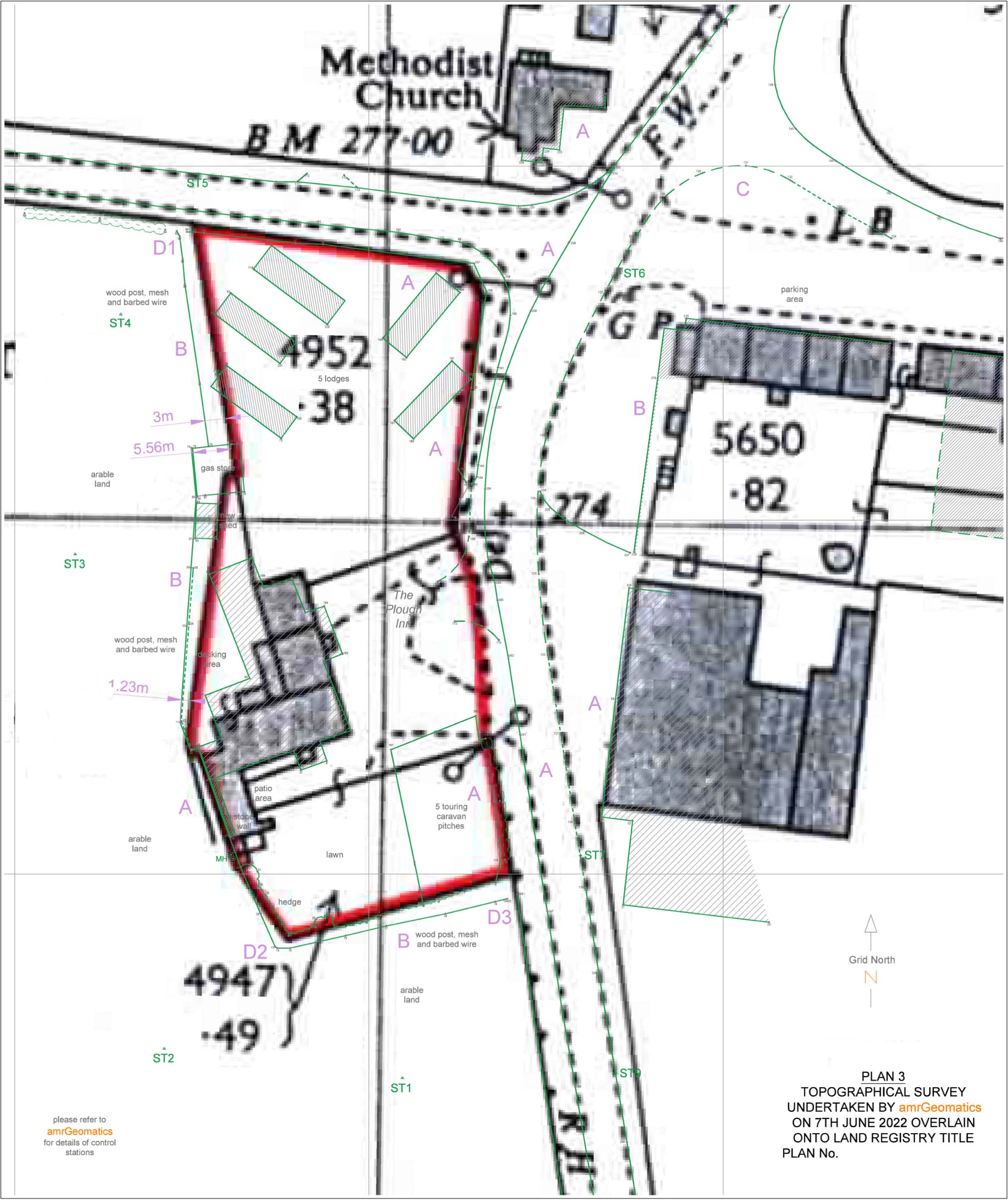
Boundary SURVEY EXAMPLES

Private Land, Land Registry Compliant Plan